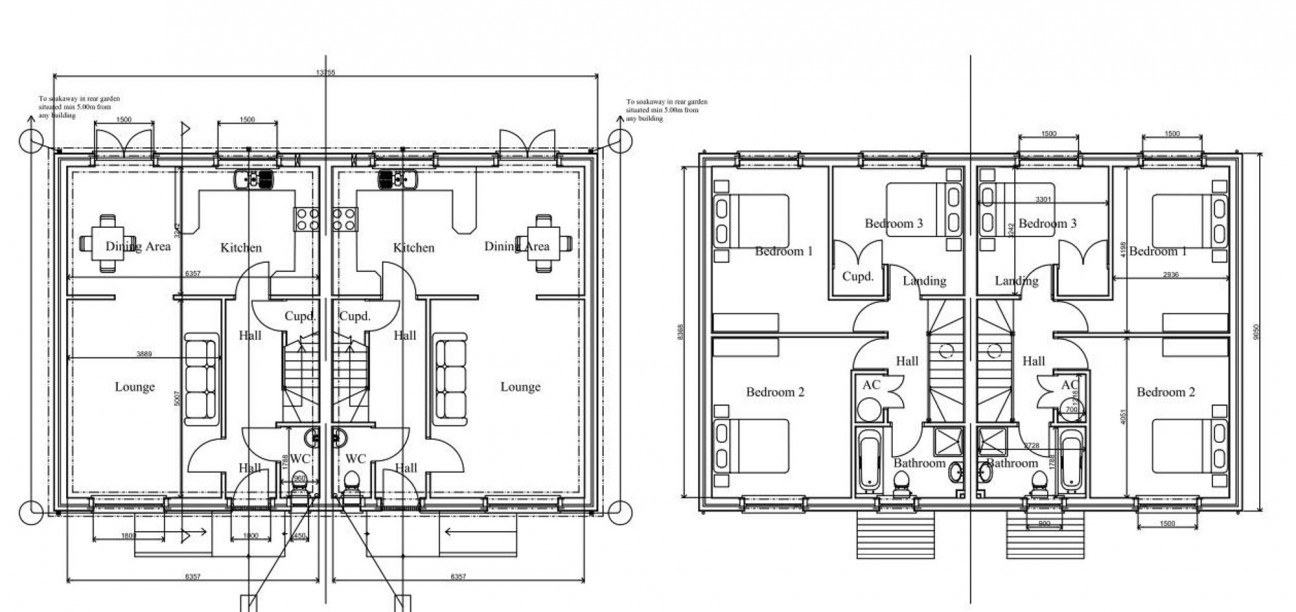
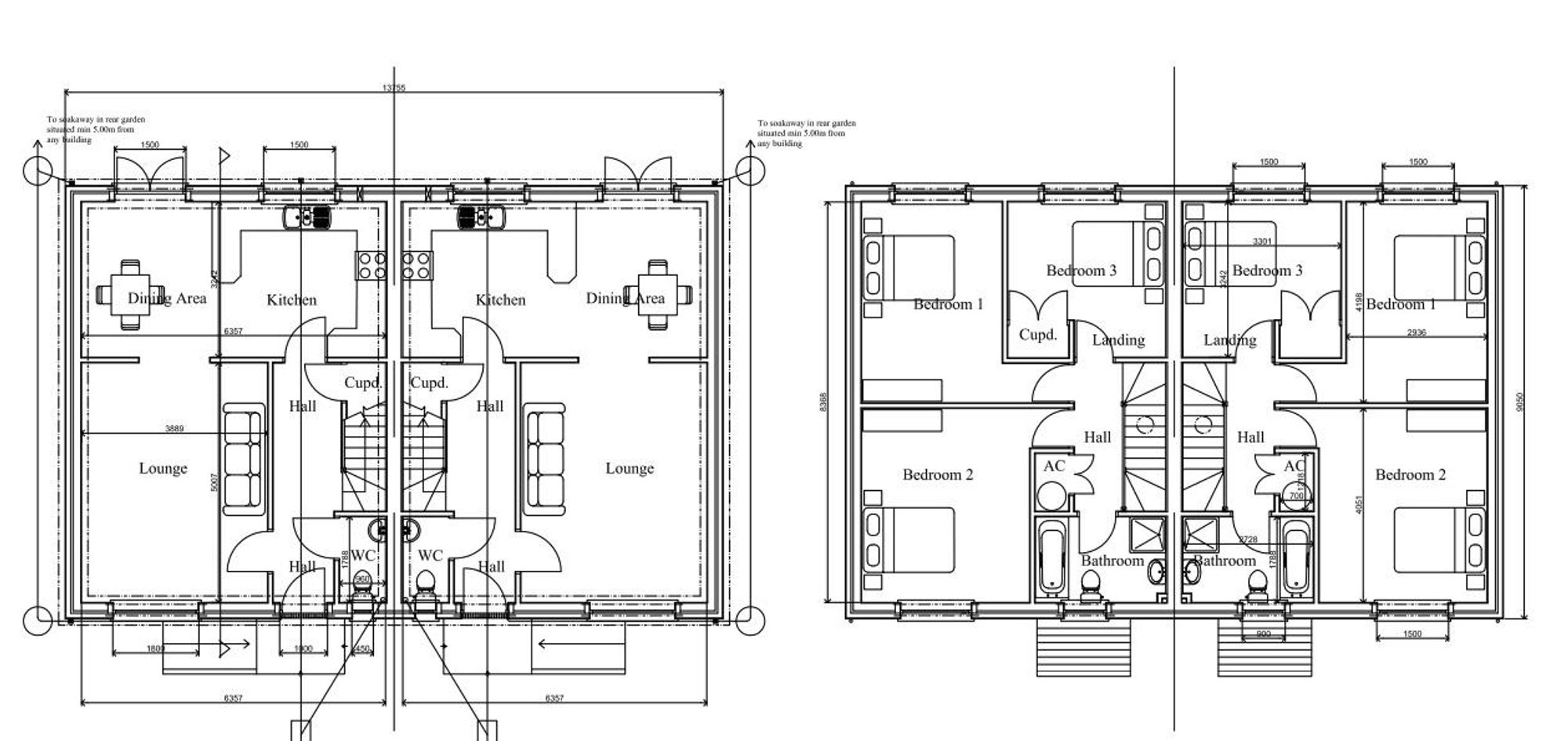
An exciting opportunity to purchase a building plot with consent 2 No. semi-detached dwellings on Land adj to the former Boncath Inn, Boncath, Cardigan, SA73 0JN Under Planning Reference 24/0571/PA.
A stunning architecturally designed, five bedroom family home with 16 acres of land situated in a rural setting on the outskirts of the Pembrokeshi......
This Attractive Three Bedroom Detached House is situated in the charming rural village of Boncath, set in the heart of the North Pembrokeshire countryside. The property offers spacious and well-presented accommodation. W...
Four Bedroom Mid 19th Century Farmhouse together withGrade II Listed Mid 18th Century Former Corn Millwith Open Plan Retail Area to the Ground Floor andTwo Bedroom, Open-Plan Apartment to Top Two FloorsLarge Commercial K...