Eglwyswrw is a rural village situated in north Pembrokeshire
The property has a Parking, Garage and a Generous Garden to the rear with a useful Outhouse.
Council Tax band E
Situated in the village of Egwlswrw.
An attractive Detached Three Bedroom Modernised Property
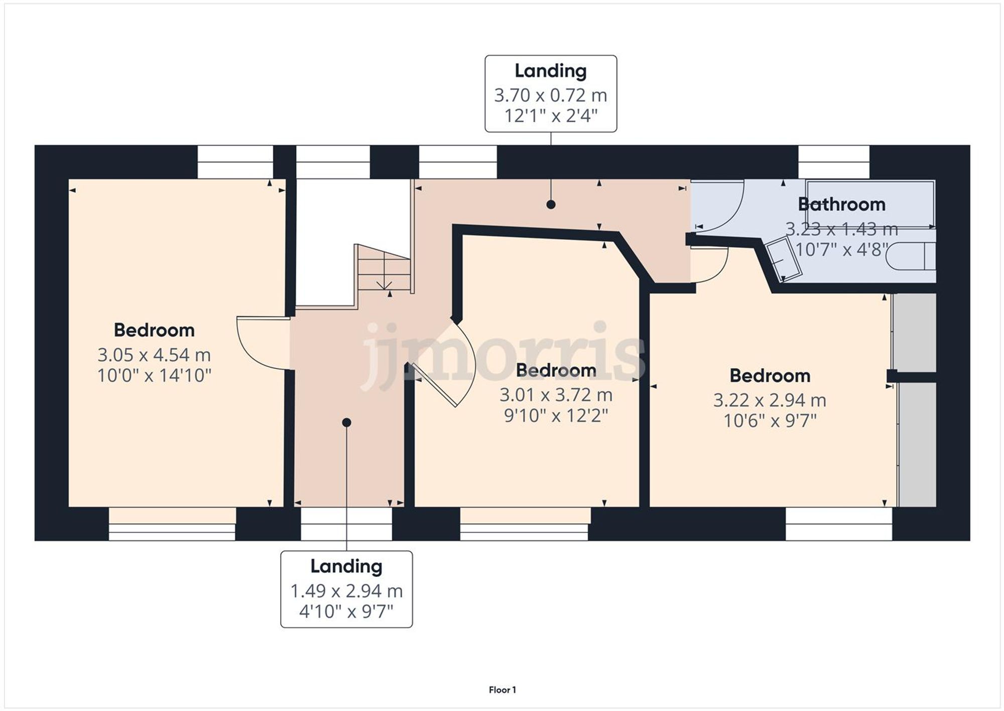
A deceptively spacious three bedroom detached house, situated in the village of Egwlswrw, the accommodation comprises: sitting room, open plan living/dining/ kitchen, utility room, rear lobby and a ground floor shower room. The first floor boasts three bedrooms and a family bathroom. The property has a parking, garage and a generous garden to the rear with a useful outhouse.
Situation
Eglwyswrw is a rural village situated in north Pembrokeshire, West Wales, approximately 7 miles northeast of Newport, 9 miles west of Cardigan, and 20 miles north of Haverfordwest. The village lies along the A487 trunk road, providing convenient access to the coastal towns of Newport and Fishguard as well as the wider road network across Pembrokeshire and Ceredigion.
The area is predominantly agricultural, characterised by open countryside, rolling hills, and scenic views towards the Preseli Mountains. Eglwyswrw benefits from a strong local community, with amenities including a primary school (Ysgol Eglwyswrw), a parish church, and a public house. Additional services, supermarkets, and secondary education facilities are available in nearby Cardigan.
The locality is popular among those seeking a peaceful rural lifestyle within easy reach of the Pembrokeshire Coast National Park, renowned for its walking trails, beaches, and wildlife.
Sitting Room
Radiator, uPVC double glazed window, door to:
Living/Dining/Kitchen
Recently installed kitchen with a modern range of wall and base units with work top over, inset stainless steel sink unit with mixer tap over, built in electric oven, hob with extractor fan over, exposed beams, wood effect laminate flooring to kitchen area, uPVC double glazed windows, radiator, under stairs cupboard. Wooden stable door to:
Rear Lobby
uPVC double glazed window, uPVC door to outside.
Wet Room
Toilet, pedestal hand wash basin, electric shower, tiled walls, uPVC double glazed window, heated towel rail, extractor fan.
Utility Room
Base cabinet with stainless steel sink unit, void and plumbing for washing machine.
uPVC double glazed window to the front elevation, exposed floor boards, radiator, picture rail.
Bedroom Three
uPVC double glazed window, picture rail, radiator, built in wardrobes.
Family Bathroom
Three piece suite with panel bath, toilet, pedestal hand wash basin, panelled walls, shaver socket, uPVC double glazed window.
Utilities & Services
Heating Source: Oil fired central heating.
Services:
Electric: Mains
Water: Mains
Drainage: tbc
Tenure: Freehold and available with vacant possession upon completion.
Local Authority: Pembrokeshire County Council
Council Tax: Band E
What3Words: ///weep.reefs.joyously
Anti Money Laundering & Ability To Purchase
Please note when making an offer we will require information to enable us to confirm all parties identities as required by Anti Money Laundering (AML) Regulations. We may also conduct a digital search to confirm your identity.
We will also require full proof of funds such as a mortgage agreement in principle, proof of cash deposit or if no mortgage is required, we will require sight of a bank statement. Should the purchase be funded through the sale of another property, we will require confirmation the sale is sufficient enough to cover the purchase.
Broadband Availability
According to the Ofcom website, this property has both standard and ultrafast broadband available, with speeds up to Standard 0.8mbps upload and 7mbps download and Ultrafast 220mbps upload and 1800mbps download. Please note this data was obtained from an online search conducted on ofcom.org.uk and was correct at the time of production.
Some rural areas are yet to have the infrastructure upgraded and there are alternative options which include satellite and mobile broadband available. Prospective buyers should make their own enquiries into the availability of services with their chosen provider.
Mobile Phone Coverage
The Ofcom website states that the property has the following imobile coverage
EE Good outdoor, variable indoor
Three Good outdoor, variable indoor
O2 Good outdoor
Vodafone. Good outdoor
Results are predictions and not a guarantee. Actual services available may be different from results and may be affected by network outages. Please note this data was obtained from an online search conducted on ofcom.org.uk and was correct at the time of production. Prospective buyers should make their own enquiries into the availability of services with their chosen provider.
Situated to the west of Ty Shamrock and adjoining the access road to Bro Preseli, a good sized Plot of Land which has a frontage of 27’6” approx. and a depth of 48’0” approx. on which stands a Detached Store Shed...
An imposing four-bedroom detached house offers spacious and versatile accommodation, perfectly suited to family living. The accommodation comprises: hall, living room, sitting room, kitchen and sun room. The first floor ...
An exciting opportunity to acquire a four bedroom detached house with a self contained studio annexe, with the added benefit of planning consent to covert a former shop premises into ancillary accommodation. The main hou...